A louer
Ref:
4907271
Imprimer la fiche 11 images
Immeuble à usage multiple
Rue Granbonpré 11
,
1435
-
Mont-Saint-Guibert
Site polyvalent jouissant d'une localisation exceptionnelle en bordure d'autoroute E411.
A 30km de Bruxelles, il permet d'accueillir différents types d'entreprises, soit dans les bâtiments existants réaménagés, soit dans des projets de construction neuves. Possibilités pour des bureaux, entrepôts, espaces polyvalents, laboratoires.
Possibilité de construction jusqu'à 30.000m² supplémentaires.
Equipement de base
- Accès handicapés
- Oui
- Toilettes H/F
- Oui
- Chauffage
- Gaz
Équipements techniques
- Faux plafonds
- Oui
Type de matériau & évaluation
- Type de revêtement de sol
- Tapis plain
Localisation
Rue Granbonpré 11
,
1435
-
Mont-Saint-Guibert
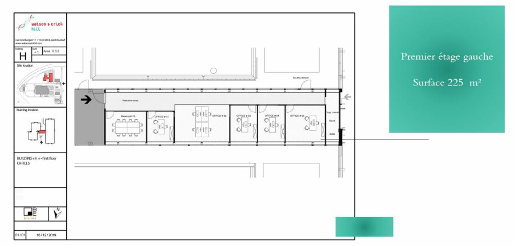
Composition
| Type | Etage | Surface totale | Disponibilité |
|---|---|---|---|
| Immeuble de bureaux | 1 | 556 m² | immédiatement |
| Immeuble de bureaux | 1 | 178 m² | immédiatement |
| Immeuble de bureaux | 00 | 347 m² | |
| Bureaux | 00 | 798 m² | immédiatement |
| Usage multiple | 00 | 266 m² | immédiatement |
| Usage multiple | 00 | 212 m² | immédiatement |
| Parking | - |
























