A louer
Ref:
5313335
Imprimer la fiche 6 images
Commerce individuel
Rue de la Science 12
,
1000
-
Brussels
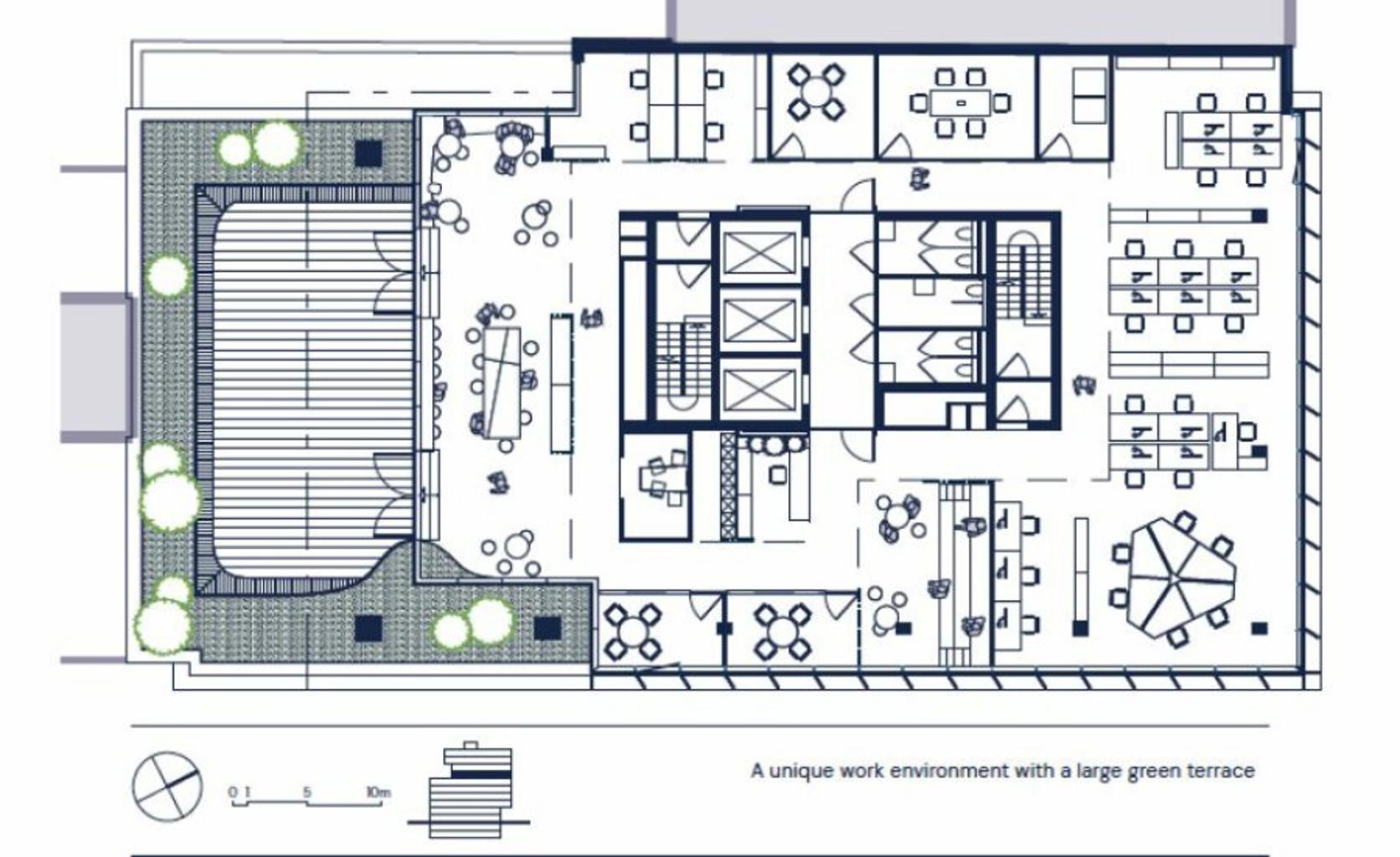
Le Science 12, édifié entre la rue Belliard et le square Frère-Orban est idéalement situé au coeur du quartier Léopold, centre des affaires à Bruxelles, à proximité du Parlement Européen, de la Commission Européenne, du Conseil des Ministres mais aussi des principales institutions politiques et financières du pays. Sa situation stratégique idéale lui confère une accessibilité optimale par le réseau autoroutier et les transports publics.
Equipement de base
- Accès handicapés
- Oui
- Cuisine
- Oui
- Air conditionné
- Oui
- Ascenseur
- Oui
- Toilettes H/F
- Oui
- Type de cuisine
- équipée
- Videophone
- Oui
Sécurité
- Contrôle d'accès
- Oui
- Alarme
- Oui
- Concierge
- Oui
Type de matériau & évaluation
- Type de revêtement de sol
- Tapis plain
Localisation
Rue de la Science 12
,
1000
-
Brussels














