A louer loué
Ref:
5554309
Imprimer la fiche 18 images
Immeuble industriel
Première Rue 5
,
6040
-
Charleroi Jumet
Immeuble industriel idéalement situé dans le zoning de Jumet. À proximité immédiate de la A54, E42, R3 et de l'aéroport de Charleroi.
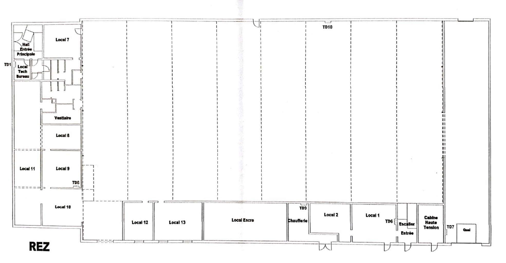
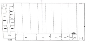
Se composant d'une surface d'entrepôt de +/- 1.440 m², locaux sociaux/atelier de +/- 230 m² et surface de bureaux au 1er étage de +/- 270 m².
1 quais de chargement, 2 portes sectionnelles. Terrain extérieur pour parkings ou stockage.
Se composant d'une surface d'entrepôt de +/- 1.440 m², locaux sociaux/atelier de +/- 230 m² et surface de bureaux au 1er étage de +/- 270 m².
1 quais de chargement, 2 portes sectionnelles. Terrain extérieur pour parkings ou stockage.
Bâtiment
- Parking extérieur
- Oui
- Parking(s) extérieur
- 30
- Type de toit
- Toit plat
- Nombre de parking
- 30
- Quai de chargement
- Oui
Equipement de base
- Cuisine
- Oui
- Air conditionné
- Oui
- Computer room
- Oui
- Toilettes H/F
- Oui
- Double vitrage
- Oui
- Installation pour câblage
- Oui
- Chauffage
- Gaz
- Type d'électricité
- 380 V
- Type de cuisine
- Amer. semi-équipée
- Bureau des magasiniers
- Oui
- Salle de douche
- Oui
Équipements techniques
- Faux plafonds
- Oui
- Châssis
- Aluminium
- Vitrage
- Double vitrage
Sécurité
- Sortie de secours
- Oui
- Alarme
- Oui
- Détecteur incendie
- Oui
Raccordements
- électricité
- Oui
- Gaz
- Oui
- Câbles téléphoniques
- Oui
- Eau
- Oui
Type de matériau & évaluation
- Type de revêtement de sol
- Béton poli
En chiffres
- Atelier
- 230m²
- Bureaux
- 270m²
- Entrepôt
- 1440m²
Localisation
Première Rue 5
,
6040
-
Charleroi Jumet






































